Продам трехкомнатную квартиру 103.9 м.кв.

на карте
Просмотров 1
7 938 672 руб.
на 34% дешевле похожих объектов ?
Екатеринбург , Республиканская улица, д.5
Мартынова Алла Михайловна
Показать телефон
Данные актуальны на 25.03.2026
Пожаловаться на объявление
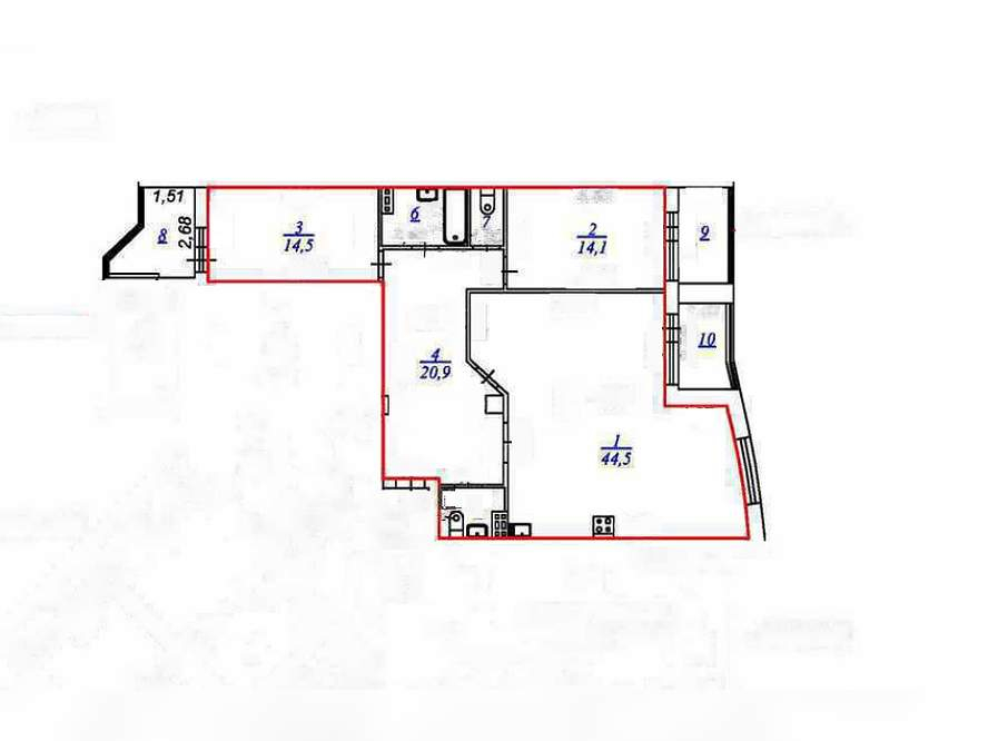
Продается 3-комн. квартира, площадью 103.9 кв. м м. Проспект Космонавтов. Жилая площадь 75.51 кв. м, кухня 20 кв. м, ремонта нет, комнаты изолированные. Раздельных санузлов - 1, лоджий - 1. Квартира располагается на 1 этаже 16-этажного монолитного дома в ЖК Соловьи 2018 года постройки. Застройщик - Монтаж-Строй (Брянск) .

Параметры здания

Тип дома Монолитный Год постройки 2018 Лифт -
Мусоропровод - Охрана/консьерж Нет Парковка Нет

Параметры объекта

Этаж 1 Этажность 16 Площадь комнат - Жилая площадь 75.51 м.кв. Площадь кухни 20 м.кв. Высота потолков - Покрытие пола - Санузел Раздельный
Балкон Есть Окна выходят - Ремонт Нет Телефон - Интернет - Мебель - Бытовая техника Нет Кондиционер Нет

Параметры продажи

Тип продажи Прямая продажа Торг Нет
Ипотека -
Объекты, находящиеся поблизости
Магазины
Фасоль 19м
Динамика изменения цен на рынке недвижимости ?

По городу Екатеринбург, в категории Квартиры » 3-комнатные
За последние полгода средняя сумма за кв.м. уменьшилась на 1197 руб. Колебание цен происходило от 115704 руб. до 116901 руб. Тендов к значительному изменению цены в последнем месяце не наблюдается.
Похожие объявления
Обновлено
25.03.2026
Фотографии
10
Объявление 5057778
Екатеринбург, Республиканская улица, д.5
8 728 897
руб. Продажа
103.1 м2
Обновлено
25.03.2026
Фотографии
10
Объявление 5057779
Екатеринбург, Республиканская улица, д.5
8 761 075
руб. Продажа
103.5 м2
Обновлено
25.03.2026
Фотографии
10
Объявление 5057777
Екатеринбург, Республиканская улица, д.5
8 690 692
руб. Продажа
102.6 м2
Обновлено
25.03.2026
Фотографии
10
Объявление 5057770
Екатеринбург, Республиканская улица, д.5
8 690 093
руб. Продажа
102.6 м2
Обновлено
25.03.2026
Фотографии
10
Объявление 5057769
Екатеринбург, Республиканская улица, д.5
8 728 298
руб. Продажа
103.1 м2
Обновлено
25.03.2026
Фотографии
10
Объявление 5057768
Екатеринбург, Республиканская улица, д.5
8 634 795
руб. Продажа
101.9 м2
Обновлено
28.01.2026
Фотографии
10
Объявление 5010600
Екатеринбург, Республиканская улица, д.5
8 761 075
руб. Продажа
103.5 м2
Обновлено
18.01.2026
Фотографии
10
Объявление 5010223
Екатеринбург, Республиканская улица, д.5
8 690 093
руб. Продажа
102.6 м2
Обновлено
18.01.2026
Фотографии
10
Объявление 5010221
Екатеринбург, Республиканская улица, д.5
8 634 795
руб. Продажа
101.9 м2
Обновлено
18.01.2026
Фотографии
10
Объявление 5010222
Екатеринбург, Республиканская улица, д.5
8 728 298
руб. Продажа
103.1 м2
Вход в личный кабинет